Z20LET nimmt kein Gas an Kühlwassertemp -40 Ansaugtemp. -40

Diskutiere Z20LET nimmt kein Gas an Kühlwassertemp -40 Ansaugtemp. -40 im Z20LET | LEH | LEL | LER | NET Forum im Bereich Technik; Hallo zusammen Mein Latein ist aus und für heute hilft jetzt nur noch Bier... aber für Morgen hoffe ich auf eure Hilfe. Mein Z20LET nimmt kein Gas...
M

murphi

Dabei seit
30.07.2013
Beiträge
5
Punkte Reaktionen
0
Ort
Altstätten
Hallo zusammen
Mein Latein ist aus und für heute hilft jetzt nur noch Bier... aber für Morgen hoffe ich auf eure Hilfe.
Mein Z20LET nimmt kein Gas an, läuft im Leerlauf erhöht, aber er läuft. Tester dran -> Fehler Kühlflüssigkeitssensor -> Istwerte -> Ansaugtemp. -40 und Kühlwassertemp. -40.

Ok. Kühlwassersensor 2xgetauscht, und auch ausgemessen i.O.
Leitung STG Pin38 an PIN1 von B61 i.O. (Auch der Wert des Kühlwassersensor lässt sich so messen)
Leitung STG Pin 9 an Pin 2 von B61 und auch an B21 und B46 i.O.
Kein Kurzschluss zu anderen Kabeln, Plus oder Minus.
Spanng STG zwischen PIN 38 und PIN 9 = 5V

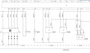
Foto Stromlaufplan im Anhang. Was soll noch sein?! Hat jemand eine Idee?
Danke im Voraus!
ansaugproblem.jpg
 
G

Gulaschkanone

Dabei seit
03.09.2010
Beiträge
21
Punkte Reaktionen
0
ist zwar ne blöde frage, aber welchen Kühlwassersensor hast Du getauscht?
den vom Tacho oder vom STG? (bitte net steinigen)

hatte das gleiche am C20XE, aber nur als er wärmer wurde, morgens im Winter sprang er super an und lief auch ordentlich, nach 5-8 Kilometern hatte ich schon ein Standgas von 3000U/min.
Tech dran gehalten und siehe da, Temperaturgeber fürs STG sagt bei warmem Motor -29°c. Getauscht und ruhe.
Wenn Du diesen getauscht hast, es aber net besser geworden ist, fällt mir gerade auch nix ein. Nen Fehlercode hat er net gesetzt?
 
Cali-Faucher

Cali-Faucher

Moderator
Dabei seit
17.01.2002
Beiträge
16.963
Punkte Reaktionen
708
Ort
Schweinfurt
Wird wohl im Stecker kein Kontakt sein

Gesendet von meinem HTC One
 
Samy

Samy

Dabei seit
26.09.2001
Beiträge
4.223
Punkte Reaktionen
4
Ort
Borken
Ja denke ich auch ist oft im Steuergerätstecker kein Kontakt wenn der schon öfter mal ab und drauf gesteckt wurde. Die alte Version mit den Metallverriegelungshebel ist da besonders anfällig mit den runden Kontakten. Dort habe ich schon öfter erlebt das dort ein Kontakt nicht mehr wollte. Beim Messen fällt das dann natürlich erstmal nicht auf.
Selten ist es auch das Steuergerät was intern hinüber ist was dann im Temperatursignal oder auch Umgebungsdrucksignal aufeinmal keinen Wert mehr ausgibt bzw. einen sehr tiefen.
 
M

murphi

Dabei seit
30.07.2013
Beiträge
5
Punkte Reaktionen
0
Ort
Altstätten
Danke für die antworten. Das mit dem stecker würde passen.... und sinn machen. Der stecker war schon 100male dran und weg. Hätte ich eigentlich auch drauf kommen können. :) ich schau es mir am montag einmal an.
Meine frage, falls es wirklich das ist. Was macht ihr als abhilfe? Gibt es den stecker einzeln zum ersetzen?

Gruss aus der schweiz

Gesendet von meinem GT-P5210 mit Tapatalk
 
Samy

Samy

Dabei seit
26.09.2001
Beiträge
4.223
Punkte Reaktionen
4
Ort
Borken
Ja normal sollte es die neue Variante mit Plastikverriegelung und eckigen Kontaktstiften einzeln zu kaufen geben. Aber soweit ich mich erinnere war das , zumindest wo ich es bei Opel bestellte, sehr teuer. Ansonsten evtl. nur die eckigne kontakte neu kaufen und die Steckergehäuse von nem Astra H Schlachtfahrzeug oder anderen bei den 1.2er 1.4er sind ja die selben STG verbaut und findet man auf dem Schrott öfter oder ebay kabelbäume. Dann hätte man ruhe. Oder man versucht seine Stifte zu retten mit einzeln rausholen und etwas dran biegen. Aber ist auf dauer evtl nichts
 
Thema:

Z20LET nimmt kein Gas an Kühlwassertemp -40 Ansaugtemp. -40

Oben